Ihre neue Ordinationsfläche in Linz

Moderne, flexible und zentral gelegene Praxisräume – ideal für Ärzte, Therapeuten und Gesundheitsdienstleister.

Moderne Ordinationsräume zur Miete

Sichern Sie sich Ihre neue Praxisfläche in zentraler Lage von Linz! In der Weißenwolffstraße 1 (1. Stock), 4020 Linz bieten wir drei komplett renovierte und hochwertig ausgestattete Ordinationsräume zur Miete an – ideal für Ärzte, Therapeuten und andere Gesundheitsdienstleister.

Die Räumlichkeiten sind flexibel mietbar: von einer halbtägigen Nutzung an bestimmten Wochentagen bis hin zur dauerhaften Anmietung.

Voll ausgestattet Ordinationsräume

  • Untersuchungsliege
  • Arbeitsplatz
  • Steharbeitsplatz
  • Internetanschluss
  • Waschbecken
  • Blutdruckmessgerät
  • Waage
  • Zugang zum GINS (Gesundheitsinformationsnetzservice, Ecard)
  • Klimaanlage

Zusätzliche Untersuchungsmöglichkeiten

Folgende Untersuchungsmöglichkeiten stehen optional zur Verfügung:

  • Ergometrie
  • Spirometrie
  • Polygraphie
  • EKG
  • Langzeit EKG
  • Langzeit Blutdruck
  • Ultraschall (drei Schallköpfe für Abdomensonographie, Echokardiographie, Gefäßduplex, Small Parts)

Die Abrechnung für die Nutzung dieser Untersuchungsmöglichkeiten erfolgt nach Vereinbarung.

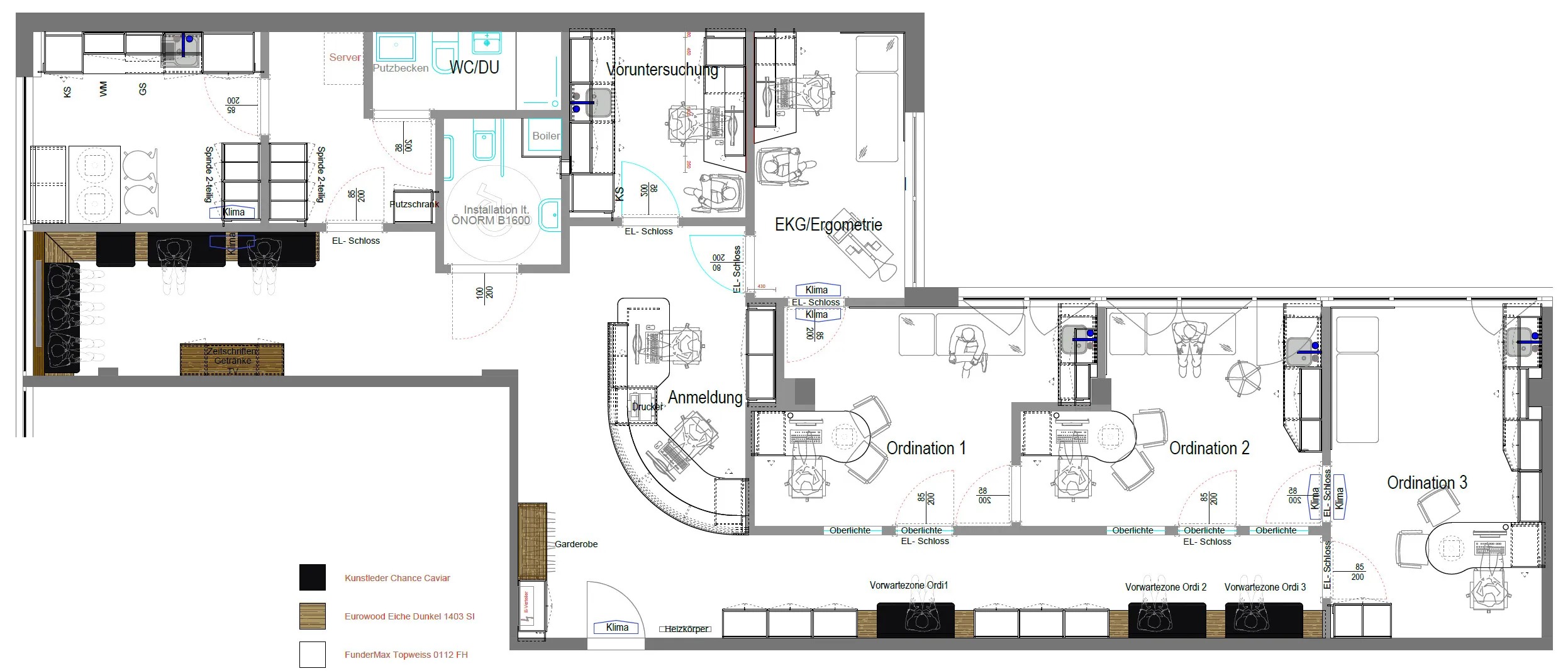
Grundriss

Gemeinschaftsbereiche – Mehr Komfort für Mieter

Zusätzlich profitieren Sie von:

  • einem einladender Empfangsbereich mit Arbeitsplatz für zwei Ordinationsassistenzen,
  • einem hellen, klimatisierten Wartebereich,
  • gemeinsamen Personalräumen mit Küche und sanitären Anlagen.

Warum diese Ordinationsflächen?

  • Top-Online-Präsenz: Ihre Praxis wird auf https://ordination-weissenwolffstrasse.at gelistet
  • Zentrale Lage: Beste Erreichbarkeit im Herzen von Linz – Parkplätze für Patienten & Bushaltestellen (Linien 12, 25, 45, 46) direkt vor dem Haus
  • Modernes Design: Hochwertige Materialien und eine durchdachte Raumaufteilung für eine angenehme Arbeitsatmosphäre
  • Flexibilität: Räume können individuell genutzt werden
  • Barrierefrei: Ein Aufzug ist vorhanden

Verfügbarkeit

Die Ordinationsflächen sind ab sofort verfügbar.

Lage & Kontakt

Jetzt anfragen

Sind Sie interessiert? Wir stehen Ihnen gerne für weitere Informationen oder einen Besichtigungstermin zur Verfügung. Kontaktieren Sie uns einfach per E-Mail unter office@ordination-weissenwolffstrasse.at oder telefonisch unter +43 681 813 612 95.

Kontakt per Email